Dom Rączna gm. Liszki
Rączna gm. Liszki Pokaż na mapie ›
Dodane: Wtorek, 04 Listopad, 2025 10:10
970 000 zł
9327 zł/m2
Szczegóły ogłoszenia
- Kategoria: Domy / Sprzedaż
- Powierzchnia:104 m2
- Liczba pokoi:4 pokoje
- Pow. działki:330 m2
- Rynek:Pierwotny
- Rok budowy:2025
- Sprzedaż:Pośrednik
- Cena: 970 000 zł / 9327 zł/m2
Opis oferty
Osiedle 7 domów jednorodzinnych w Rącznej (Kaszów) - komfort, spokój i zieleń!Na sprzedaż oferujemy domy w nowo powstającym kameralnym osiedlu 7 domów jednorodzinnych o powierzchni ok. 104 m² każdy, położonych na działkach o powierzchni od 3,1 do 5,55 arów .
Każdy budynek to dom parterowy z użytkowym poddaszem , wykonany w technologii tradycyjnej, z wysokiej jakości materiałów.
Osiedle będzie całkowicie ogrodzone , z wykonanymi podjazdami i tarasami z kostki brukowej, co zapewni mieszkańcom bezpieczeństwo, prywatność i komfort.
Podstawowe informacje o ofercie:
• Powierzchnia działki: od 310 m² do 550 m²
• Cena (brutto): od 970 000 zł do 1 040 000 zł
• Stan: w trakcie realizacji
• Typ budynku: wolnostojący
• Powierzchnia użytkowa: ok. 104 m²
• Piętra: parter + poddasze użytkowe
Rozkład domu:
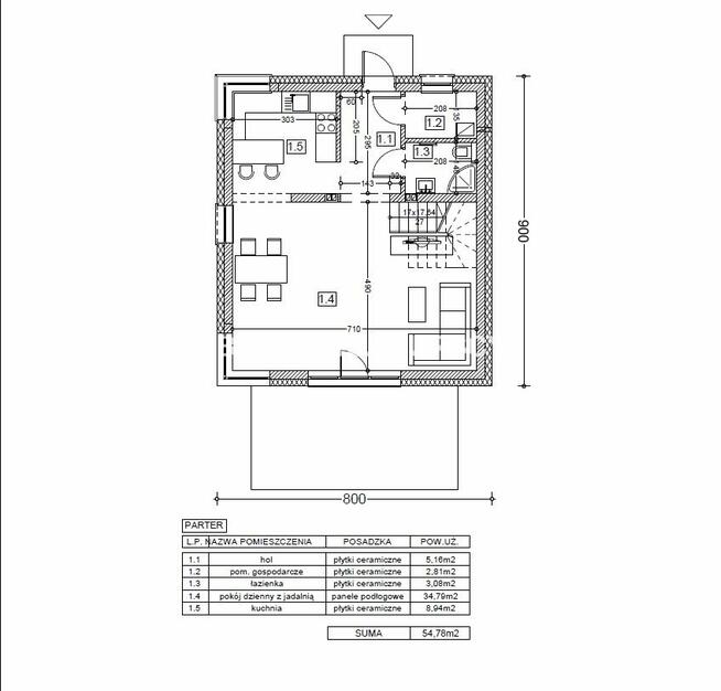
Parter
1. Hol - 5,16 m2
2. Pomieszczenie gospodarcze - 2, 81 m2
3. Łazienka - 3,08 m2
4. Pokój dzienny z jadalnią - 34,79 m2
5. Kuchnia - 8,94
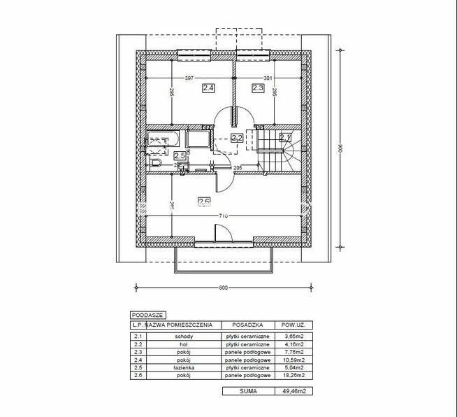
Poddasze
1. Schody - 3,65 m2
2. Hol - 4,16 m2
3. Pokój - 7,76 m2
4. Pokój - 10,59 m2
5. Pokój - 18,26 m2
6. Łazienka - 5,04 m2
Termin zakończenia budowy w stanie deweloperskim marzec 2026r.
Standard deweloperski
Konstrukcja:
• technologia tradycyjna (POROTHERM 25 cm + ocieplenie 20 cm)
• dachówka ceramiczna, okna dachowe FAKRO
• tynki maszynowo-gipsowe, wylewki i izolacje
• ogrzewanie podłogowe w całym domu
• kocioł z zamkniętą komorą spalania i zasobnikiem
• wentylacja mechaniczna (z urządzeniami), instalacja klimatyzacji (bez urządzeń)
• instalacje: prąd, woda, gaz, kanalizacja (szambo), zbiornik na deszczówkę
• alarm z powiadomieniem jednostki interwencyjnej
Dodatkowe walory:
• kostka brukowa wokół budynku i na podjeździe
• ogrodzenie działki z bramą i furtką
• taras z widokiem na ogród
• teren wstępnie uporządkowany i zniwelowany
Otoczenie i lokalizacja
Inwestycja znajduje się w wyjątkowo spokojnej, zielonej części Rącznej - z dala od miejskiego zgiełku, a jednocześnie z doskonałym dostępem do infrastruktury:
• szkoła podstawowa i przedszkole - w pobliżu osiedla
• las, park, ścieżki spacerowe i rowerowe - idealne dla miłośników natury
• sklepy i usługi w bliskim sąsiedztwie
• lotnisko Balice - ok. 10 km
• Kraków, Salwator - ok. 16 km
Rączna (gm. Liszki)
To idealne miejsce dla osób, które szukają połączenia spokoju podmiejskiego życia z szybkim dostępem do miasta.
W celu uzyskania bliższych informacji zapraszam do kontaktu:
Maria Śmiech
Tel: +48 500 - pokaż numer telefonu -
E-mail: @
::DODATKOWE INFORMACJE
Prąd: jest
Gaz: jest
Woda: jest
Dojazd: ASFALTOWA
Otoczenie: zabudowa jednorodzinna
Ogrzewanie: podłogowe
Alarm: TAK
Internet: TAK
Komunikacja publ.: autobus podmiejski
Odległość do komunikacji publicznej : 900
Odl. do sklepu : 1000
Odl. do szkoły : 400
Odl. do przedszkola : 400
Drzwi antywłamaniowe: TAK
Teren ogrodzony: TAK
Okna: PCV 3 komorowe
Instalacje: ELEKTRYCZNA, GAZOWA
Balkon: jest
Liczba balkonów: 1
Tarasy: taras
Liczba tarasów: 1
Zagosp. działki: częściowo zagospodarowana
Ukształtowanie działki: płaska
Kształt działki: prostokąt
Rodzaj domu: wolnostojący
Stan wybudowania: Stan deweloperski
Typ elewacji: tynk szlachetny + klinkier
Pokrycie dachu: dachówka ceramiczna
Powierzchnia użytkowa : 104,2400
Stan budynku: do wykończenia
Podpiwniczenie: nie
Garaż: miejsce postojowe
Ogrodzenie działki: ogrodzona
Rok budowy: 2025
Liczba pokoi: 4
Liczba sypialni: 3
Powierzchnia pokoi : 18,26; 10,59; 7,76; 34,79
Podłogi pokoi: wylewka
Ściany pokoi: tynk gipsowy
Wystawa okien - pokoje : Wsch, Zach
Typ łazienki: razem z wc
Liczba łazienek: 2
Powierzchnia łazienki : 5,06; 3,08
Podłoga łazienki: wylewka
Podłoga WC: wylewka
Ściany WC: inne
Liczba przedpokoi: 2
Powierzchnia przedpokoi : 5,16; 4,16
Podłoga przedpokoi: wylewka
Ściany przedpokoi: inne
::LINK DO STRONY
sadurscy.pl/offer/BS2-DS-312824
::KONTAKT DO AGENTA
Maria Śmiech
+48 500 - pokaż numer telefonu -
@
::DANE BIURA
Oddział BS2, Rynek Pierwotny
Przewóz 47
30-081 Kraków
12 630-90-45
--------------------------
::GRATIS | Nasza prowizja zawiera: koszt przedwstępnej notarialnej umowy sprzedaży nieruchomości z rynku wtórnego.
::GWARANCJA | Gwarancja zwrotu zadatku. Więcej informacji na sadurscy.pl/zwrot-zadatku/
Oferta wysłana z systemu Galactica Virgo
Numer oferty: BS2-DS-312824
Powiadom o podobnych ogłoszeniach
Lokalizacja: Rączna
Kategoria: Nieruchomości » Domy » Sprzedaż
Cena: od 824500 zł do 1115500 zł Powierzchnia : od 88 m2 do 120 m2
Chcę otrzymywać powiadomienia o nowych ofertach

Konto firmowe
Na Lento.pl od 17 lip 2019
Strona użytkownika
- Wypromuj ogłoszenie
- Zgłoś naruszenie
- Drukuj ulotkę
- Edytuj/usuń ogłoszenie
- Udostępnij ogłoszenie
- Dodaj na Facebook

















